
地址:河北省廊坊市光明东道吴堤
邮编:065000
联系人:王耀
电话:0316-7410512
15933268399
传真:0316-7410512
QQ: 657700795
E-mail:wade@dingtianjixie.com
公司网址:http://www.lfdtjx.com
超高温瞬时灭菌机
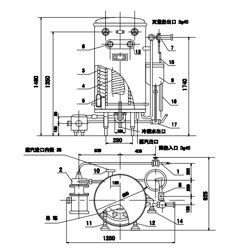
我司专业从事制药、乳品、饮料、酿酒、食品饮料生产线加工机械设备的生产与销售,主导产品有杀菌罐系列、高速乳化罐、溶糖罐、冷热缸(老化缸)、单双效浓缩器、反应釜、发酵罐、多功能提取罐、中药提取设备、真空浓缩罐、种子罐、搅拌锅、夹层锅、直冷式贮奶罐、胶体磨、板式换热器等系列产品,也可以根据用户需要设计生产其他食品设备。同时,结合我们多年实践经验为用户解决设备工艺上的需求和难题,各种不锈钢设备达到卫生级设备标准,使用户过程于完全卫生状态。凭借雄厚的实力和良好信誉为用户提供质优价廉,安全可靠的产品及工程服务。 本设备主要用于鲜奶、果汁、饮料、酒类等流体物料的杀菌,也可用于豆浆,流体药料的灭菌。加热方式:蒸汽加热或者电加热。 主要规格及技术参数 1、 处理能力:2m3/h; 2、 灭菌温度:115~135℃; 3、 使用导热油: < 0.09Mpa; 4、 高温受热时间:4~6S; 5、 进料温度:< 45℃(加冷却管); 6、 出料温度:< 65℃;; 7、 电机功率:采用一台离心泵时,1.5KW; 8、 设备净重:410Kg; 9、 电加热功率; 36KW 10、 占地面积:2.5m2 主要结构与工作原理 超高温瞬时灭菌机的结构见图1,在主机内装着—高温桶(5),用作充盛导热油。桶外的主要设置是螺旋形双套管(3),用作对进、出物料的冷热交换;桶内的主要设置时螺旋形单管(4),用作间接受热。 图2 绘出了物料的灭菌过程。物料通过供料泵(2)进入双套盘管(3)的 外层流道、由内层流出的热料间接加热而得到预热,当物料进入设置在高温桶(5)内的高温盘管(4)时,由于桶内的导热油间接加热而被加热到需要的灭菌温度,然后在桶外单旋管内保温而使物料细菌被杀灭,当回到双套盘管(3)时,物料便进入内层流道,被外层冷料所冷却,从而使出料温度显著下降(一般低于65℃)。如工艺上需要提高或降低出料温度时,可启用角式截止阀(12),让它接通热源(导热油)或热源(水或冰水等)让它们进入双套管下端的外层流道。 节流阀(7)是可以调节的,一方面让物料维持在一定的压力之下, 使其沸点温度提高,以防止汽化:另一方面,也作调节流量用。物料最后经三通旋塞(8)除料。该旋塞下端接着旋管(15),其出口将着贮槽(9),当需要时,可旋动旋管对准溢流管(16)。进料三通旋塞(1)的上端与贮槽(9)接通,下端则与料源管道相连接。 当需要提高处理能力时,可卸去“U”形管(17)改接一只离心泵,接法见图3。 本机属手控式灭菌机,灭菌温度由角式截止阀(11)(见图1、2)来调节、出料温度可通过角式截止阀(12)来改变。导热油的压力表(13)、灭菌温度表(6)以及出料温度表(14)均装在主机上。 吊运安装与调整 本设备在高温桶顶有两只吊环(见图1)是备作吊装用的,但要掀去顶盖才能见到。 1、本设备安置在车间平整的地坪上,无需设备基础。 2、设备安装时可调节4只支角螺栓,支角必须与地坪接触,供料泵的4只脚同样要求与地坪接触,泵轴必须校正水平,以防使用时发生振动。 3、所有与本设备连接的管道都应注意不使设备受任何外力作用,特别是应消除热膨胀的影响。 4、进料泵必须保证电动机传动方向的正确性:操作者面对叶轮,泵轴应作逆时针方向转动,安装好后可用手转动泵轴是否灵活。 5、在导热油入口处必须装有截止阀。临时停机时防止导热油回流。 6、贮槽内的溢流管必须与地沟接通,防止洗涤液腐蚀损坏车间地面。 安装图 本设备的通用安装图见图1,若再加接中间泵运行的见图3,凡停电频繁的地区使用本设备时,请加接“停电冷却装置”,见图4。 操作与使用 1、使用前的检查: (1) 安全阀、压力表是否损坏、失灵。 (2) 设备的道路是否畅通。 (3) 出料三通旋塞的流向是否向下(即流向溢流管)。 (4) 旋管是否对准贮槽中的溢流管。 (5) 贮槽是否盛满水。 2、正常操作 (1) 开启贮槽上的清水阀(用户自接) (2) 转动进料三通旋塞的手柄(1)、使清水注入供料泵。 (3) 启动供料泵(2)以水代料作排料运行。 (4) 开启导热油阀门(10),控制角式截至阀(11),将导热油注入高温桶(5),并观察压力表及温度表数值,调节阀(11),使温度符合要求。 (5) 关闭清水阀,待贮槽中的水将放尽时,变换进料三通旋塞(1)的进料位置,让物料进入供料泵。 (6) 当旋管排出物料时,即转动旋管使物料流入槽(9)、同时变换出料三通旋塞(8)的位置开始出料。 (7) 观察灭菌机温度、调节角式截止阀,对于热敏性物料应逐步增加导热油温度,以防温度过高引起积垢和堵塞。 (8) 控制节流阀(7),正确掌握所需的“背压”,保证物料在管内不断地流动,“背压”的高低,取决于加热温度。 (9) 当工艺上需要提高或降低出料温度时,可使用角式截止阀(12)。 3、不正常操作 (1)如果物料暂时供应不上时,必须先在贮槽中注满清水,后将旋管对准溢流管,待最后的物料通过进料三通旋塞(1)时,切换手柄,使贮槽中的水代料进入供料泵(2),此时贮槽上的清水阀应打开,以保证断料时清水循环,待供上物料时,重新转入正常操作。 (2)如果停料时间较长,应先关闭导热油截止阀,然后可按上述方法用水循环数分钟后,关闭停止运行。 (3)设备的清洗 本设备采用就地化学清洗(C、I、P),清洗时不要拆卸机件。清洗的目的是清除热交换盘管壁上的积垢,以改善热交换效果,提高设备能力,在一般情况下,连续使用6~8小时,必须清洗一次在特殊情况下,如当发现生产能力显著降低时,应立即进行清洗。 ①C、I、P洗涤程序 A、水洗: 当物料行将结束时,即用水清洗,以排除残余物料,同时更有利于下一步的清水液清洗,当设备流出的水变清时,水洗可停止。 B、碱洗: 在贮槽中将苛性钠(烧碱NaOH)配制成2%浓度碱性洗涤液,加热至80℃,循环约30分钟。碱液能溶解蛋白质、乳脂肪并使积垢发泡松散。如积垢比较严重,可适当提高溶液的浓度。 C、水洗: 排除碱液后用水冲洗约15分钟。 D、酸洗: 将硝酸(HNO3)配制成2%浓度的酸性洗涤剂加热至80℃,循环约30分钟。 E、水洗: 排除酸液后用水冲洗约15分钟,以防再生产时物料受到残留酸液的污染。 冲洗完毕,应清水注满,以备下次操作。 (2)洗涤注意事项: A、在洗涤过程中,切勿使用氯化物配制洗涤剂。 B、清水要求含氯量小于50mg/L,水质较差地区、洗涤时必须将水净化。 

- 上一条: 喷淋杀菌机
- 上一条:没有了



